江部 売倉庫 217坪+土地637坪 

  • 種別(用途)建物及び敷地(建物及び敷地)
  • 価格3,000 万円
  • 所在地長野県中野市江部
  • 交 通上信越自動車道 信州中野ICから3.6㎞
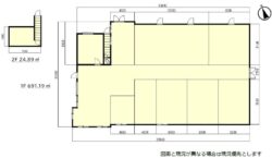
  • 土地面積㎡ 2,104.60㎡
  • 建物面積㎡ 1階691.19㎡ 2階24.89㎡ 延床面積716.08㎡
  • 建物構造鉄骨
  • 築年1992
  • 間取
  • 都市計画未線引
  • 用途地域無指定
  • 地目(公簿) 宅地・畑
  • 道路敷地の北側が幅5.4~6.5mの市道と間口70m接道しています。敷地の東側が幅3~4mの市道と間口9m接道しています。
  • 水 道公共
  • 下水公共
  • 引渡時期応談
  • 取引態様仲介
  • 仲介手数料売買価格の3% + 6万円×消費税
  • 備 考◎土地637坪◎建物217坪◎鉄骨造亜鉛メッキ鋼板葺2階建◎1992年築◎広々駐車場大型OK◎上信越自動車道 信州中野ICから3.6㎞ ※現況有姿売買  ※売主は契約不適合責任を負いません。